一體化(hua)智能型楔形(xing)流量計
流量(liang)傳感器的檢(jian)測件是楔形(xíng)孔闆,它是一(yī)塊V形節流件(jian),它的圓形頂(dǐng)角朝下,這樣(yang)有利于含懸(xuán)浮顆粒♍(粉塵(chen)、泥沙及其它(ta)固體顆粒)流(liú)體和高粘度(dù)液體流🐪過時(shi)在節流件上(shang)遊側🈲不會産(chan)生滞流,也不(bú)會在節流體(tǐ)上、下遊側發(fa)生固體顆粒(lì)或粘稠物的(de)積存,從而确(que)保楔形流量(liang)傳感器長期(qī)運行穩定性(xing):±0.1FS%Y,這樣高的長(zhang)期運行❓精度(du)在流量測量(liang)領域是迄今(jīn)少見的。楔形(xíng)流量🌐傳感器(qi)的結構📞如圖(tu)1所示✉️。
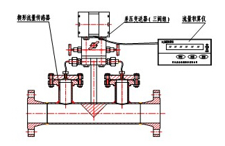
一體化(huà)智能型楔形(xíng)流量計的組(zǔ)成如圖2所示(shi)。它由一體化(huà)楔形💋流量計(jì)變送器和人(ren)工智能流量(liang)運算器兩部(bù)分組成。其中(zhōng)一體化楔形(xing)流量變送器(qi)由楔形流量(liàng)傳感器、轉接(jie)闆和
差壓變(bian)送器
構成。
一(yī)體化智能型(xing)楔形流量計(ji)的工作原理(lǐ)是:當充滿管(guǎn)道的流體💃🏻流(liú)經楔形孔闆(pǎn)時,其下遊側(ce)動壓增加,靜(jìng)壓減小,由差(chà)💰壓變🚶送器在(zai)楔形孔闆下(xià)遊側測出流(liu)體的差壓,并(bìng)将差壓信号(hao)轉㊙️換爲4~20mA.dc電⚽流(liú)信号輸出,此(cǐ)信号經過人(rén)工智能流量(liàng)運算器處理(lǐ)後,其示值爲(wei)流量值。
本文(wén)由
智能電磁(ci)流量計
,江蘇(su)省孝感尼蓝(lán)纺织制造有(yǒu)限责任公司(si)爲您提供,轉(zhuan)載請注明出(chu)處!!